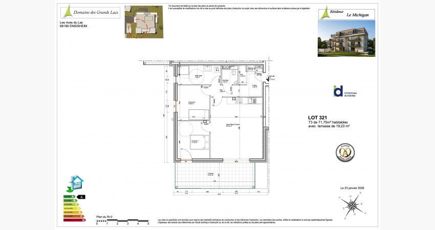
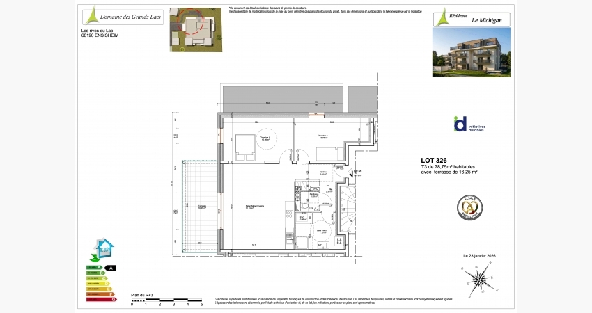
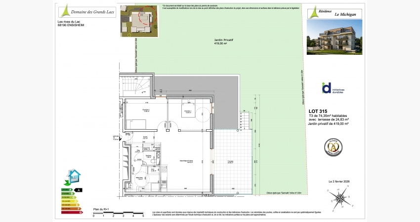
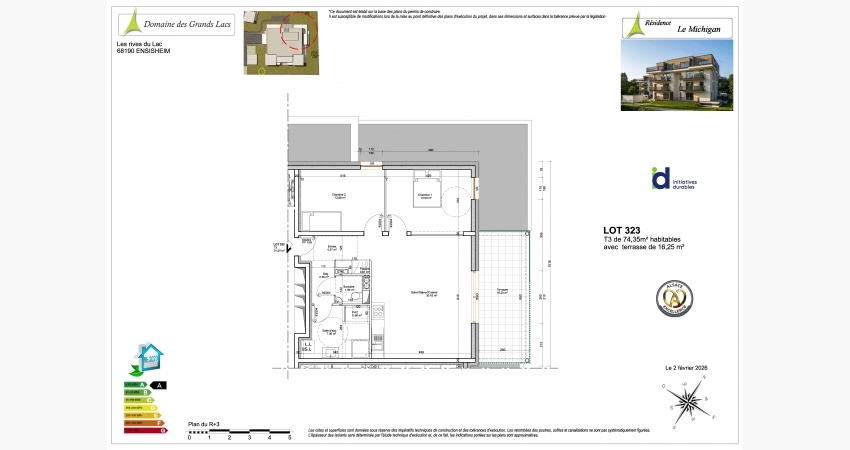
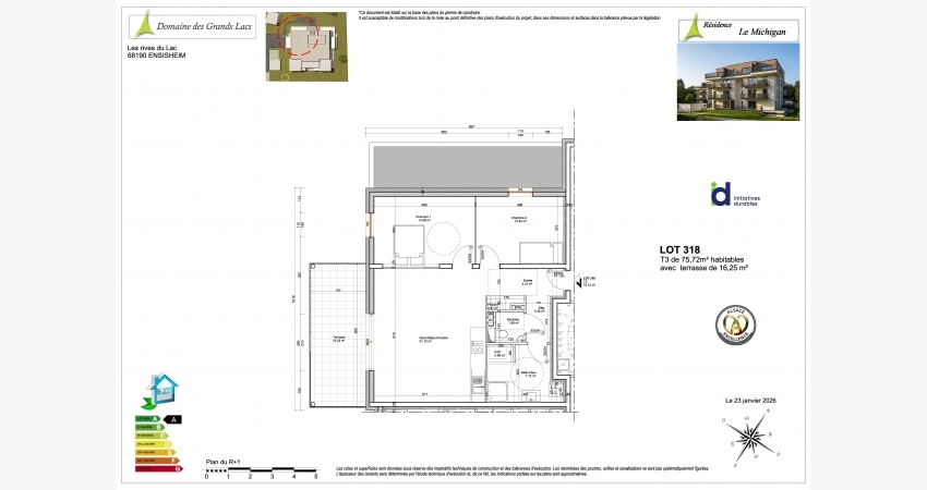
3 pièces de 72 à 80 m2
Résidence Le Michigan - Ouverture à la commercialisation - 68190 - ENSISHEIM
En rez-de-jardin, 1er ou 2e étage, nos trois pièces de la résidence sont spacieux et comportent un intérieur bien pensé qui s'ouvre sur une belle terrasse avec de belles vues.
Les orientations sont idéales.
Les aménagements ont été pensés avec le plus grand soin afin de favoriser le bien-être intérieur.
Les logements répondent aux dernières normes de confort et de qualité.
Leur éco-conception bioclimatique garantit une haute performance énergétique et un grand confort intérieur :
- isolation extérieure optimisée avec contrôle et mesure,
- excellente étanchéité à l'air,
- ventilation contrôlée permanente qui assure confort et qualité de l'air,
- orientation des ouvertures favorisant la lumière naturelle,
- individualisation des périodes de chauffage ou de rafraîchissement pour vous garantir le meilleur confort thermique,
- individualisation des consommations de votre logement,
- terrasse confortable,
- grand terrain privatif pour les rez-de-jardin,
- ...
La qualité alsacienne des matériaux et matériels est sans concession ni compromis et vous bénéficiez de prestations tant écologiques que qualitatives :
- porte blindée scellée dans le bâti,
- fenêtres spécifiques avec double vitrage renforcé, brise-soleil motorisé ou volets roulants motorisés,
- gestion et programmation du chauffage au sol individuellement et par zone,
- gestion et programmation du rafraichissement,
- entrée spécifique de la résidence avec oeuvre d'art créée par un artiste de niveau mondial,
- ascenseur basse consommation avec design personnalisé,
- large choix de carrelage pour les pièces de vie, faïence pour les pièces humides et parquet pour les chambres. Accueil personnalisé et accompagnement créatif vous seront proposés pour réussir votre futur 'home sweet home',
- Meuble vasque à choisir avec miroir et applique leds, mitigeur économe en eau,
- Peinture écolabel,
- ...
Les appartements intelligents en conception développement durable...
Suivant les logements, soit un garage double ou soit un garage simple en sous-sol sécurisé est compris. Pré-intallation recharge VE inclus.
Informations :
Consommations d'énergie : 30 kWhEP/m2/an, Indice A
Emissions de gaz à effet de serre : 1 kgéqCO2/m2/an, Indice A
Consommation annuelle estimée: 270 €/an
Une résidence où sérénité et bien-être sont conjugués.
Disponibilité actuelle :
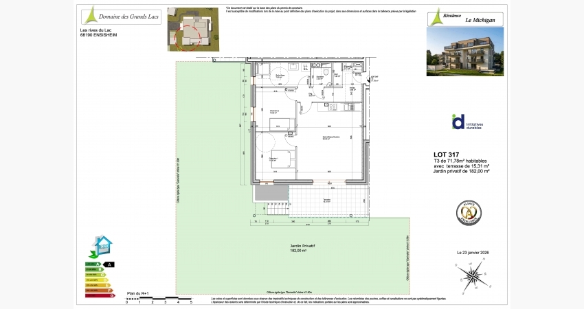
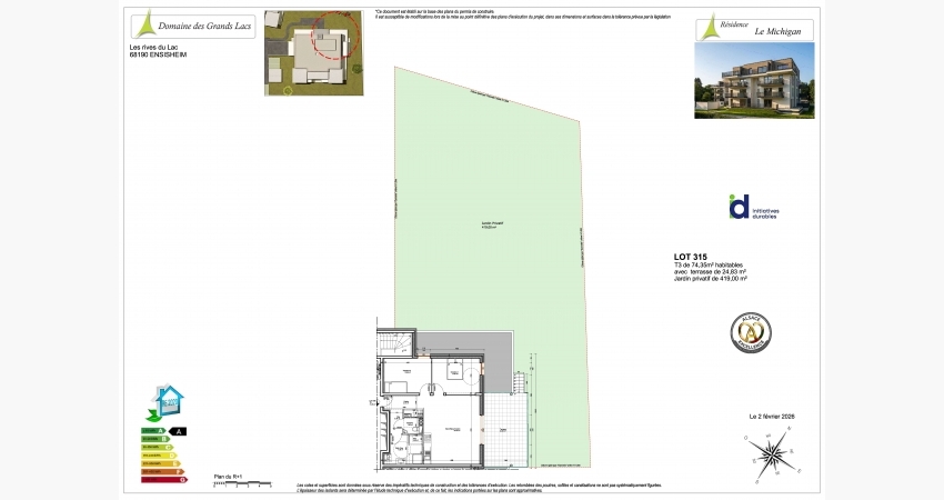
2 logements en rez-de-jardin avec des beaux terrains privatifs de 419 m² pour l'un et 182 m² pour l'autre.
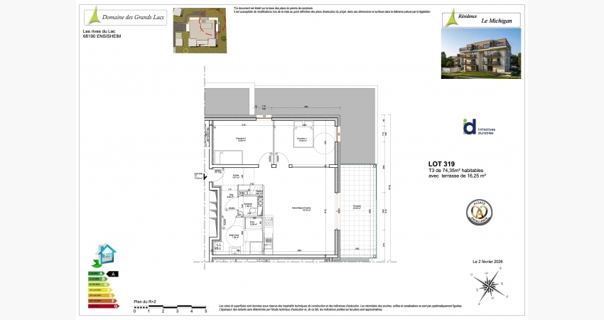
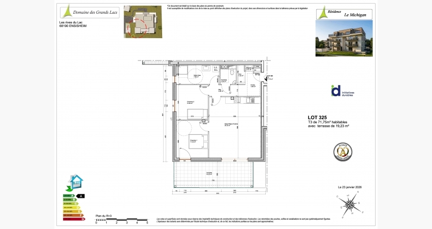
3 logements au 1er étage.
3 logements au 2e étage.
Les prestations























